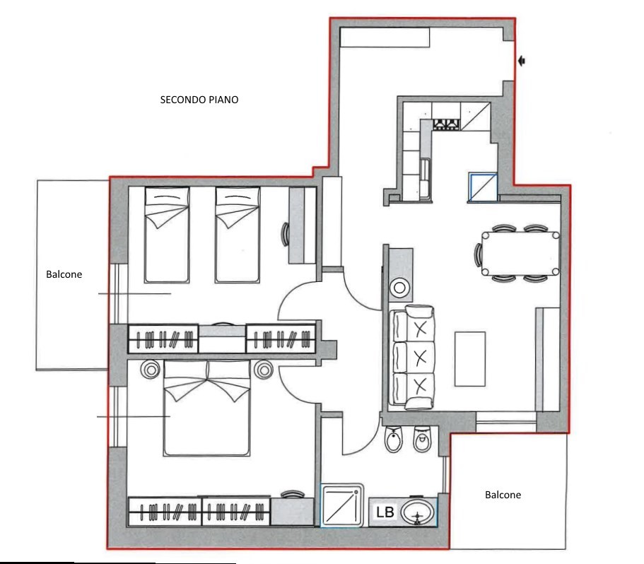
MONZA inizio Via Lecco - in zona ben servita a due passi dall'isola pedonale e dal Parco di Monza ed a meno di un chilometro dalla stazione ferroviaria di Monza Sobborghi, proponiamo in vendita un appartamento di tre locali completamente ristrutturato a nuovo. L'appartamento è posto al secondo piano con ascensore ed è composto da ingresso, soggiorno con balcone ed angolo cottura, due camere da letto delle quali una con balcone ed un bagno. Cantina al piano interrato. Possibilità box in vendita nel condominio prospiciente per euro 30.000. Riscaldamento centralizzato. Le spese condominiali ammontano a 2.400 euro/anno. C.E. G - Ipe 248,97 kWh/mqa
Ascensore, Balconi, Cantina, Giardino condominiale
Classe G Ipe 248,97 KWh/m²a

MONZA inizio Via Lecco - in zona ben servita a due passi dall'isola pedonale e dal Parco di Monza ed a meno di un chilometro dalla stazione ferroviaria di Monza Sobborghi, proponiamo in vendita un appartamento di tre locali completamente ristrutturato a nuovo. L'appartamento è posto al secondo piano con ascensore ed è composto da ingresso, soggiorno con balcone ed angolo cottura, due camere da letto delle quali una con balcone ed un bagno. Cantina al piano interrato. Possibilità box in vendita nel condominio prospiciente per euro 30.000. Riscaldamento centralizzato. Le spese condominiali ammontano a 2.400 euro/anno. C.E. G - Ipe 248,97 kWh/mqa
Riferimento: 3887
Tipologia: Appartamento
Comune: Monza
Zona: Via Lecco
Cucina: Cucina abitabile
N. Bagni: 1
N. Camere: 2
Box:
Piano: 2°
Anno costruzione: 1960
Stato conservazione: Ristrutturato
Stato: Libero
Spese cond. annue €: 2.400,00
Riscaldamento: Centralizzato
Ascensore, Balconi, Cantina, Giardino condominiale
Efficienza energetica
Classe G Ipe 248,97 KWh/m²a